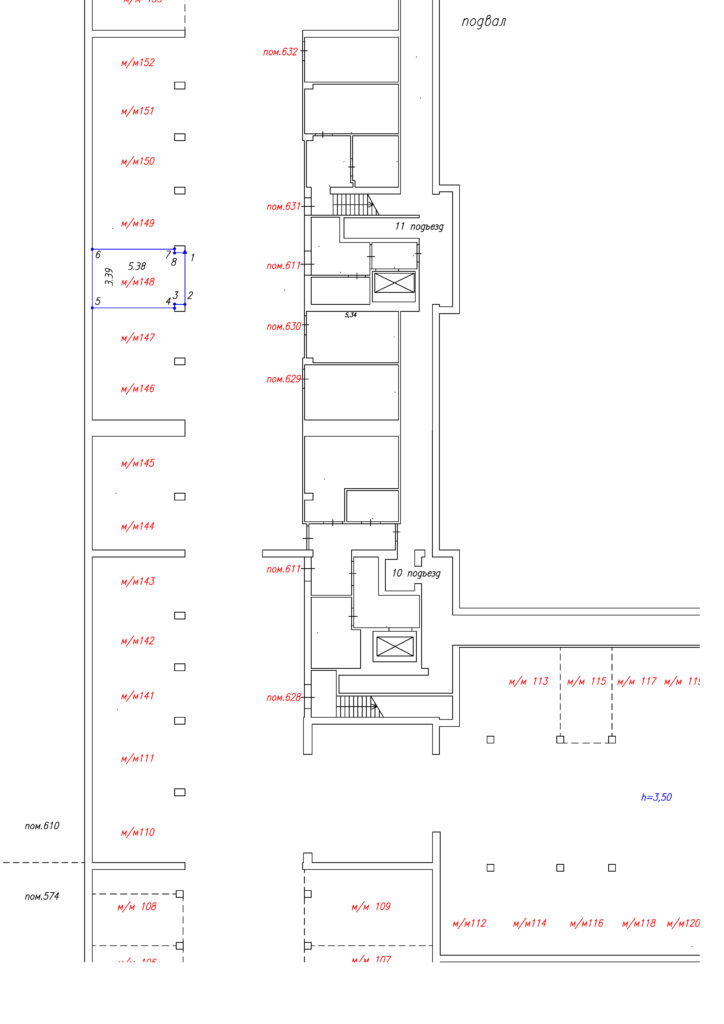
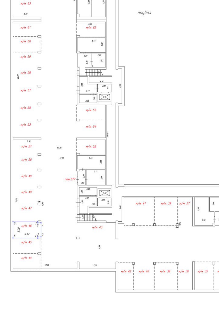
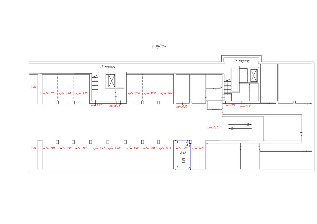
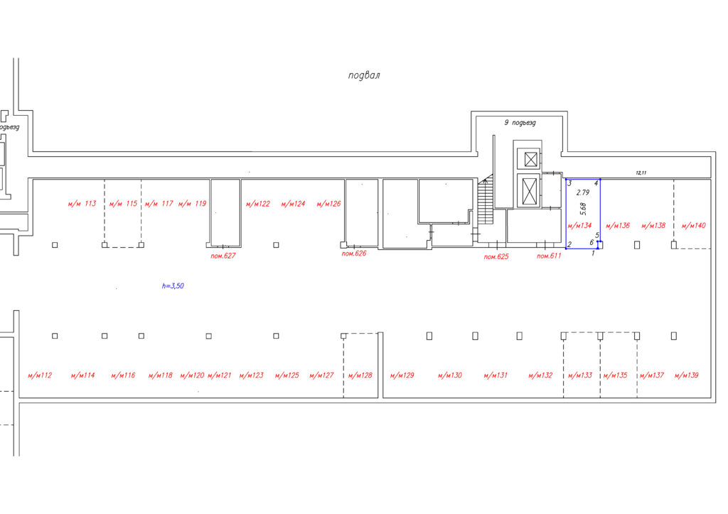
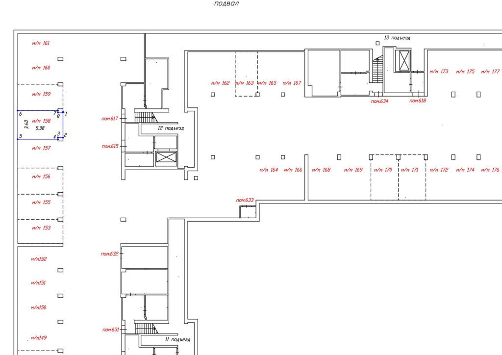
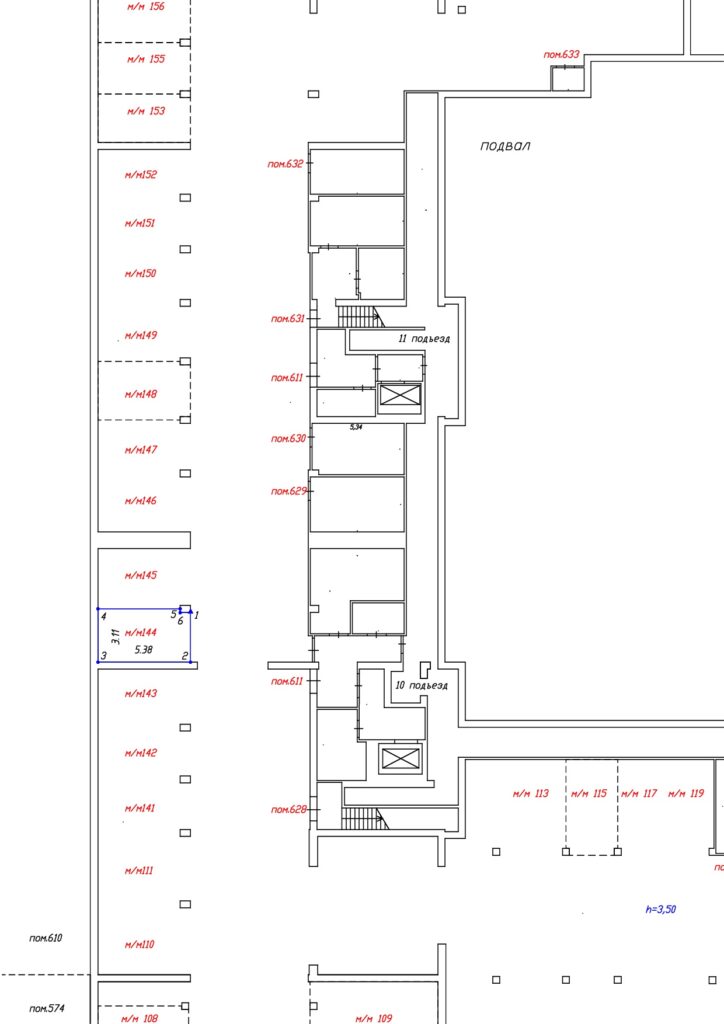
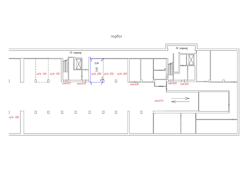
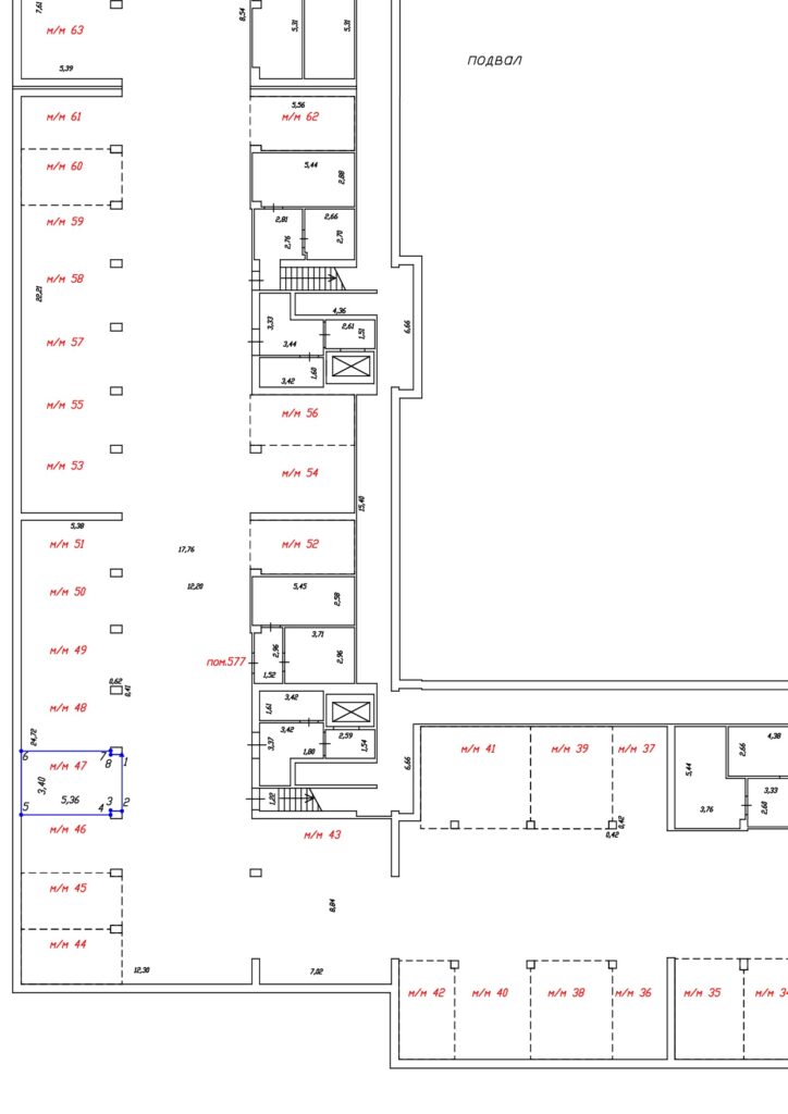
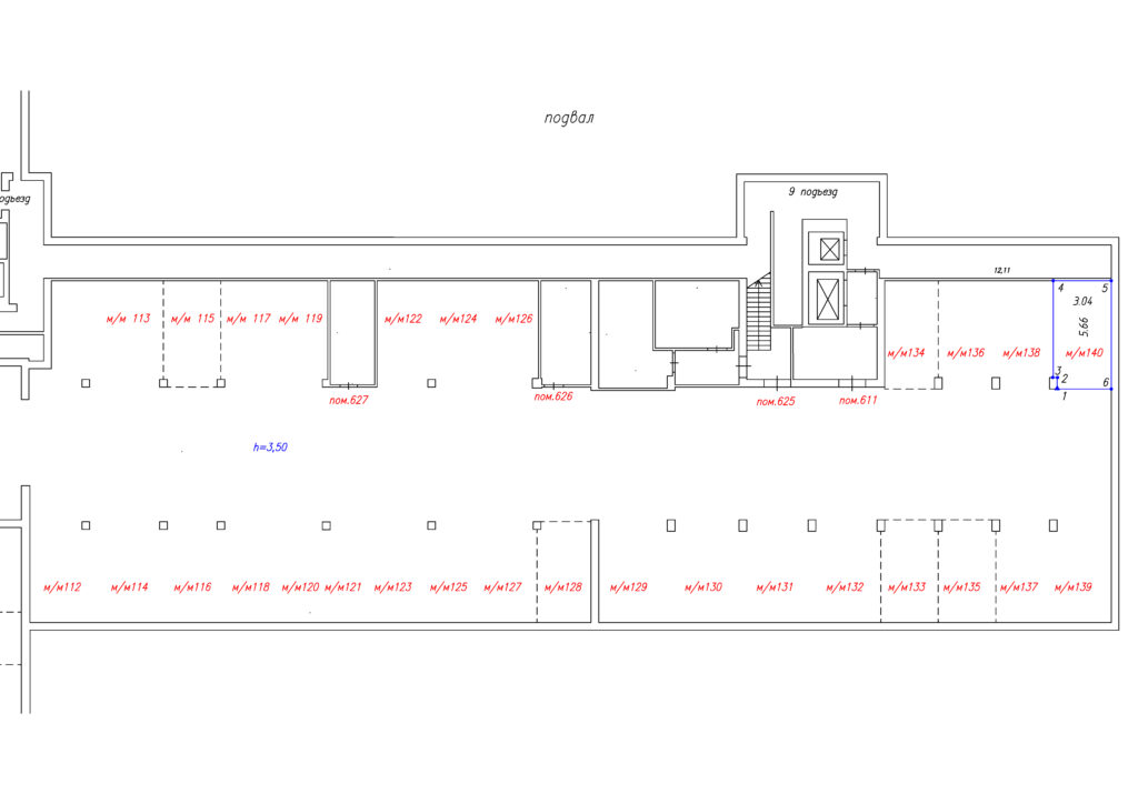
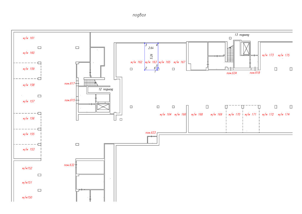
ул. 78 Добровольческой бригады, д. 26 Дек 26, 2024 Советский ррайон автором admin машино-место 35 машино-место 65 машино-место 105 машино-место 107 машино-место 76 машино-место 77 машино-место 184 машино-место 56 машино-место 134 машино-место 135 машино-место 140 машино-место 148 машино-место 163 машино-место 205 машино-место 46 машино-место 47 машино-место 144 машино-место 158